MLA

MLA

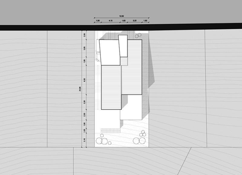
Il progetto per una casa unifamiliare nell’insediamento Las Aguilas a Monterrey, Nuevo Leon, Mexico, trae dalla valorizzazione del luogo le proprie peculiarità. Si tratta infatti di un terreno in forte pendenza con uno splendido panorama verso la città e le montagne. La casa si compone di due livelli, uno superiore accessibile direttamente dalla strada con la zona living e la cucina-pranzo, i servizi e un piccolo studio, anch’esso accessibile direttamente dall’esterno. Quello inferiore, invece, alloggia le due stanze con bagno e la tipica saletta privata. Le grandi terrazze da cui godere del panorama sono le protagoniste indiscusse della vita domestica, mentre le grandi vetrate si contrappongono alla luce diffusa dalle numerose finestre. Il giardino e il tetto verde completano lo straordinario rapporto tra l’edificio e il luogo.

anno: 2007

luogo: Monterrey, Nuevo Leon, Messico

superficie: 250 mq

programma: nuovo edificio residenziale unifamiliare

servizi: progetto preliminare, definitivo e esecutivo; calcolo e progetto esecutivo delle strutture e degli impianti

A. Mannino

Skills

Posted on

28 Maggio 2014